X6132 Máy phay bảng nâng phổ quát

Giới thiệu và sử dụng sản phẩm
Công cụ máy móc này là một loại công cụ cắt kim loại mạnh, công cụ máy có độ cứng mạnh mẽ, phạm vi tốc độ thức ăn rộng và có thể chịu chip tải nặng. Lỗ hình nón trục chính có thể được lắp đặt trực tiếp hoặc thông qua các phụ kiện của các máy cắt phay hình trụ khác nhau, máy cắt phay hình tròn, máy cắt hình thành, máy cắt mặt, và các công cụ khác, phù hợp để xử lý các bộ phận khác nhau của máy bay, máy bay, thiết bị, máy bay, vv, v.v.

+ Liên hệ với chúng tôi
  • X6132 Máy phay bảng nâng phổ quát

Thông tin sản xuất

Các tính năng cấu trúc chính
1, cơ sở, thân máy bay, bàn làm việc, trượt, trượt và các thành phần chính khác là các vật liệu có độ bền cao và xử lý lão hóa nhân tạo, để đảm bảo sự ổn định lâu dài của công cụ máy.
2, ổ trục chính của công cụ máy là ổ trục thon, trục chính áp dụng ba cấu trúc hỗ trợ, độ cứng hệ thống của trục chính là tốt, khả năng chịu lực rất mạnh và trục chính áp dụng phanh tiêu thụ năng lượng, mô -men xoắn lớn và dừng nhanh và đáng tin cậy.
3, Góc xoay ngang của bảng ± 45 °, mở rộng phạm vi xử lý của công cụ máy. Phần truyền chính và phần thức ăn của bảng làm việc áp dụng cấu trúc truyền bánh răng, phạm vi quy định tốc độ rộng và sự thay đổi tốc độ là thuận tiện và nhanh chóng.
4, Bảng X/Y/Z hướng có nguồn cấp dữ liệu thủ công, nguồn cấp dữ liệu di động và ba di động về phía trước, tốc độ thức ăn có thể đáp ứng các yêu cầu xử lý khác nhau; Thức ăn nhanh có thể làm cho phôi đạt đến vị trí xử lý một cách nhanh chóng, việc xử lý thuận tiện và nhanh chóng, và thời gian không xử lý được rút ngắn.
5, x, y, z ba hướng dẫn hướng dẫn bằng cách làm nguội cực độ, điều trị mài chính xác và xử lý cào, với sự bôi trơn cưỡng bức, cải thiện độ chính xác, kéo dài tuổi thọ của máy.
6. Thiết bị bôi trơn có thể buộc đường ray hướng dẫn dọc, ngang, L và dọc và đường ray hướng dẫn để bôi trơn, giảm hao mòn máy công cụ và đảm bảo hoạt động hiệu quả của máy công cụ; Đồng thời, hệ thống làm mát thay đổi kích thước của luồng chất làm mát bằng cách điều chỉnh vòi phun để đáp ứng các nhu cầu xử lý khác nhau.
7, Thiết kế máy công cụ phù hợp với nguyên tắc công thái học, dễ vận hành; Bảng điều khiển được thiết kế với các biểu tượng tượng hình, đơn giản và trực quan.

Thông số kỹ thuật chính của máy công cụ

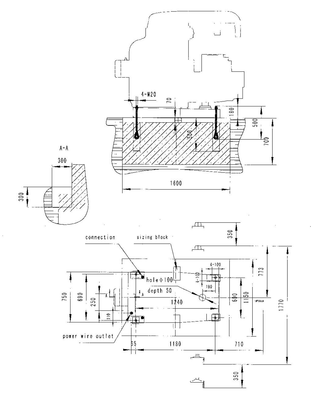
Làm thon lỗ trục chính 7 :24 ISO50
Khoảng cách từ đường trung tâm trục chính đến đường ray hướng dẫn thẳng đứng 30-350 mm
Khoảng cách từ đường trung tâm trục chính đến chùm treo 155 mm
Khẩu độ trục chính 29mm
Góc xoay tối đa của bảng ± 45 °
Phạm vi/loạt tốc độ trục chính 30 ~ 1500 vòng /phút /18 cấp độ
Kích thước bảng 1320x320 mm
Bảng đột quỵ theo chiều dọc/ngang/dọc 700 (680/255 (240)/320 (300) mm
Bảng thức ăn phạm vi theo chiều dọc/ngang/dọc Cấp 18 23,5-1180/23,5-1180/8-394 mm/phút
Bảng nhanh tốc độ di chuyển dọc/ngang/dọc 2300/2300/770 mm/phút
Số lượng, chiều rộng và khoảng cách của các khe hình chữ T 18/7/70 mm
Động cơ chính 7,5kw
Nuôi điện cho động cơ 1,5kW
Kích thước máy (L X W X H) 2294x1770x1665 mm
Trọng lượng máy net 2700/3000 kg

Giữ liên lạc

+ SUBMIT
Ningbo Hongjia CNC Technology Co., Ltd.
Ningbo Hongjia CNC Technology Co., Ltd.
Công ty TNHH Công nghệ Ningbo Hongjia CNC bắt đầu vào năm 2006 và được thành lập vào năm 2018. Nó được đặt tại Quận mới của Qianwan, Thành phố Ningbo, tỉnh Chiết Giang, South Wing of China Yangtze River Delta Zone. Đây là một doanh nghiệp chuyên về nghiên cứu, phát triển, sản xuất và bán thiết bị cắt kim loại CNC. Là một Trung Quốc X6132 Máy phay bảng nâng phổ quát supplier and custom X6132 Máy phay bảng nâng phổ quát company, Với sức mạnh kỹ thuật mạnh mẽ và kinh nghiệm công nghiệp phong phú, Hongjia CNC cam kết cung cấp cho khách hàng các giải pháp CNC tiên tiến để đáp ứng nhu cầu của khách hàng trong các ngành công nghiệp khác nhau.
Nhà máy và thiết bị
  • Xuất hiện nhà máy
  • Xuất hiện nhà máy
  • Thiết bị
  • Thiết bị
  • Thiết bị
  • Thiết bị
  • Thiết bị
Những gì tin tức
Kiến thức ngành

X6132 Máy phay bảng nâng phổ quát , Là một sản phẩm của Hongjia CNC, đã giành được danh tiếng cao trong nhiều ngành công nghiệp vì khả năng cắt kim loại mạnh mẽ và khả năng ứng dụng rộng rãi. Máy công cụ này không chỉ đủ cứng để chịu được các hoạt động cắt giảm tải nặng mà còn được trang bị một loạt các tốc độ thức ăn để đảm bảo tính ổn định và hiệu quả của quá trình xử lý. Thiết kế lỗ côn trục chính của nó rất linh hoạt, và các máy cắt phay hình trụ khác nhau, máy cắt phay hình tròn, hình thành máy cắt phay, máy cắt mặt, v.v. Xe máy và các ngành công nghiệp khác.

Sự khéo léo tinh tế, đúc chất lượng tuyệt vời
Hongjia CNC biết rằng chất lượng cao đến từ sự theo đuổi chi tiết cuối cùng. Các thành phần chính của máy phay bàn nâng toàn bộ x6132, như cơ sở, cơ thể, bàn làm việc, trượt, trượt, v.v., đều được đúc bằng vật liệu có độ bền cao và độ tuổi giả tạo, giúp loại bỏ hiệu quả ứng suất bên trong của vật liệu và đảm bảo độ ổn định dài hạn và giữ nguyên công cụ. Trục chính áp dụng vòng bi con lăn thon, kết hợp với cấu trúc ba hỗ trợ, không chỉ có độ cứng hệ thống tốt và khả năng chịu tải mạnh, mà còn được trang bị một thiết bị phanh tiêu thụ năng lượng, với mô-men xoắn phanh lớn và tắt máy nhanh và đáng tin cậy, cung cấp bảo đảm chắc chắn cho xử lý chính xác cao.

Linh hoạt và có thể thay đổi, mở rộng ranh giới xử lý
Để đáp ứng các nhu cầu xử lý đa dạng, góc quay ngang của máy làm việc của máy phay bảng nâng phổ quát X6132 có thể đạt đến ± 45 °. Thiết kế này mở rộng đáng kể phạm vi xử lý của công cụ máy. Đồng thời, phần truyền chính và phần thức ăn của máy làm việc áp dụng cấu trúc truyền bánh răng, với phạm vi điều chỉnh tốc độ rộng và thay đổi tốc độ nhanh và thuận tiện, làm cho quá trình xử lý linh hoạt và hiệu quả hơn. Về chế độ cho ăn, các hướng X/Y/Z của máy công cụ có ba chế độ: cho ăn bằng tay, cho ăn cơ giới và cho ăn nhanh chóng. Tốc độ cho ăn có thể được điều chỉnh linh hoạt theo các nhu cầu xử lý khác nhau. Chức năng cho ăn nhanh cho phép phôi nhanh chóng đạt đến vị trí xử lý, rút ​​ngắn đáng kể thời gian không xử lý và cải thiện hiệu quả xử lý tổng thể.

Sản xuất chính xác, tuổi thọ dài
Về mặt xử lý chi tiết, các đường ray hướng dẫn X, Y và Z của máy phay Bàn nâng phổ biến X6132 đã được làm nguội siêu âm, mặt đất chính xác và được cạo, và hệ thống bôi trơn bắt buộc không chỉ cải thiện đáng kể độ chính xác của xử lý, mà còn kéo dài hiệu quả tuổi thọ của công cụ máy. Thiết bị bôi trơn có thể buộc bôi trơn các ốc vít và hướng dẫn hướng dẫn theo các hướng dọc, ngang và dọc, giảm hiệu quả sự hao mòn của công cụ máy móc và đảm bảo hoạt động hiệu quả và ổn định của máy công cụ. Ngoài ra, hệ thống làm mát điều chỉnh linh hoạt luồng chất làm mát bằng cách điều chỉnh vòi phun để đáp ứng nhu cầu làm mát trong các điều kiện xử lý khác nhau, cải thiện hơn nữa chất lượng xử lý và hiệu quả.

Thiết kế nhân bản, quy trình vận hành đơn giản hóa
Hongjia CNC được coi là sự tiện lợi của sự tương tác của máy và máy khi thiết kế máy phay bàn nâng phổ biến X6132. Thiết kế tổng thể của máy công cụ phù hợp với các nguyên tắc của công thái học, rất dễ vận hành và dễ sử dụng. Bảng điều khiển áp dụng thiết kế biểu tượng đồ họa, trực quan và dễ hiểu. Ngay cả các nhà khai thác lần đầu tiên cũng có thể nhanh chóng làm chủ nó, điều này làm giảm đáng kể độ khó của hoạt động và cải thiện hiệu quả công việc.

Đừng ngần ngại liên hệ khi bạn cần chúng tôi!